Hồ sơ thiết kế biệt thự là bộ hồ sơ diễn giải về hình dáng, kích thước và cấu tạo công năng không gian của biệt thự. Từ đó các kiến trúc sư cùng nhà thầu thi công mới có thể tạo nên một công trình biệt thự theo đúng mong muốn của gia chủ. Do vậy, bộ hồ sơ này đóng vai trò rất quan trọng giúp gia chủ định hướng được đúng thiết kế ban đầu. Hồ sơ thiết kế biệt thự đầy đủ bao gồm các hồ sơ chi tiết dưới đây :
1. Hồ sơ thiết kế mặt kiến trúc biệt thự
2. Hồ sơ thiết kế về kết cấu biệt thự
3. Hồ sơ thiết kế nội thất biệt thự
4. Hồ sơ về hệ thống điện và cấp thoát nước
5. Hồ sơ thiết kế phối cảnh 3D cảnh quan, sân vườn biệt thự
6. Hồ sơ dự toán thi công biệt thự.

Hồ sơ thiết kế biệt thự đầy đủ ( full )
Điều này sẽ giúp cho quá trình xây dựng biệt thự chi tiết, kỹ lưỡng và thi công diễn ra cũng thuận lợi hơn. Tuy nhiên, đối với những căn biệt thự nhỏ có thể bỏ qua bước hồ sơ này và thống nhất cũng sẽ được thay đổi giữa hai bên trong quá trình làm việc. Còn đối với những căn biệt thự rộng lớn thì việc đọc hồ sơ này sẽ mang lại những lợi ích như sau:
► Hồ sơ thiết kế biệt thự đầy đủ sẽ giúp gia chủ có thể mường tượng ra tổng thể biệt thự sau khi hoàn thiện công trình.
► Bộ hồ sơ này còn giúp các kiến trúc sư có thể điều chỉnh và hoàn thiện bản vẽ một cách tối ưu nhất. Điều này sẽ đảm bảo đáp ứng mong muốn của gia chủ và đạt được tính thẩm mỹ cao
► Khi chiếu hồ sơ thiết kế biệt thự với bản vẽ thiết kế nội thất, gia chủ sẽ không phải suy nghĩ thêm về các bố trí hay sử dụng nội thất sau khi hoàn thành.
► Khi hồ sơ được chốt lại những thay đổi, bản vẽ sẽ được bộ phận thi công nhận là bản hoàn chỉnh cuối cùng. Từ đó giúp bên thi công có thể lựa chọn vật liệu phù hợp, tiết kiệm tối đa thời gian và chi phí cho cả hai bên.

Hồ sơ bản vẽ thiết kế biệt thự đầy đủ
► Vậy, bộ hồ sơ thiết kế biệt thự đầy đủ bao gồm những hạng mục quan trọng gì ?
Một bộ hồ sơ thiết kế biệt thự đầy đủ sẽ bao gồm những hạng mục sau :
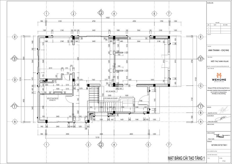
Hồ sơ thiết kế kiến trúc biệt thự

Hồ sơ thiết kế kiến trúc biệt thự gồm có mặt bằng tầng trệt, mặt bằng chính, mặt đứng bên biệt thự và mặt cắt chi tiết biệt thự,…
Hồ sơ thiết kế kết cấu gồm có mặt bằng định vị, bố trí cọc, mặt bằng định vị phần lưới cột, mặt bằng móng và mặt bằng kết cấu các tầng,…
Hồ sơ thiết kế điện
Hồ sơ thiết kế điện gồm có sơ đồ hệ thống điện, mặt bằng bố trí điện các tầng, hệ thống báo động và camera quan sát,….
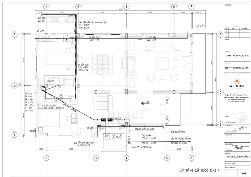
Hồ sơ thiết kế nước
Hồ sơ thiết kế nước gồm có sơ đồ hệ thống nước, chi tiết cấp thoát nước các phòng vệ sinh và mặt bằng cấp thoát nước các tầng.

Hồ sơ thiết kế Điện thông minh Smarthome, Internet…
Hồ sơ thiết kế Điện thoại, Anten, Internet gồm có hệ thống internet các tầng và các hệ thống kỹ thuật khác.
Hồ sơ in màu phối cảnh 3D biệt thự
Hồ sơ in màu phối cảnh 3D giúp tạo điều kiện phục vụ cho quá trình thi công của biệt thự. Nếu có xảy ra bất kỳ sai sót nào cũng có thể chỉnh sửa dễ dàng hơn.
Hồ sơ dự toán thi công biệt thự
Hồ sơ dự toán thi công sẽ giúp gia chủ có thể nắm được tổng khối lượng của vật tư và quản lý dễ dàng hơn nên tránh được tình trạng thất thoát.
► Nên tìm hiểu hồ sơ thiết kế biệt thự đầy đủ ở đâu ?
Nếu khách hàng vẫn đang băn khoăn không biết nên tìm hiểu hồ sơ thiết kế biệt thự đầy đủ ở đâu chất lượng và uy tín thì hãy đến ngay với WE HOME - là một trong những nhà thầu thiết kế thi công biệt thự uy tín, có bề dày kinh nghiệm 15 năm, tiên phong với vai trò là Tổng thầu nội thất biệt thự trọn gói tại nhiều dự án biệt thự cao cấp như Vinhomes ; Parkcity ; Dương Nội ; Ciputra ; Ecopark ; Xanh Villas ; The Manor….
Quy trình làm việc của WEHOME đảm bảo tính chuyên nghiệp cùng đội ngũ nhân viên tư vấn và kiến trúc sư dày dặn kinh nghiệm, giỏi chuyên môn, nhiệt tình và am tường về vật liệu, kiến thức phong thủy ứng dụng.
Lời kết
Việc tìm hiểu về hồ sơ thiết kế biệt thự đầy đủ sẽ giúp các gia chủ đánh giá được uy tín và năng lực của nhà thầu thiết kế và thi công biệt thự với thị trường đa dạng nhà cung cấp dịch vụ hiện nay .
► WEHOME tự hào là một trong những địa chỉ uy tín nhất dành được sự quan tâm và tin tưởng của nhiều gia chủ biệt thự trong nhiều năm qua.